4 ***S Zimmer Ferienwohnung Schwalbennest Grächen
Zusammen mit der Familie und doch für sich
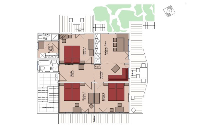
Im 1. Holzstock maxi (Objekt Nr. 1224) 80m² für 6 - 8 Personen
Die kombinierte Familien Ferienwohnung mit Verbindungstüre ist ideal für Begleitpersonen.
Aussenbereich
- Eigene grosse Terrasse auf der Ostseite mit Sonnenaufgang, Esstisch, Sitzgelegenheit und direktem Zugang zum Rasensitzplatz/Liegewiese zur Allgemeinnutzung mit Holzbankgarnitur, Gartenmöbeln und Grillstelle zur Gemeinschaftsnutzung vorhanden
- Zusätzlicher eigener grosser, sonniger Balkon auf der Südseite mit Esstisch, Sitzgelegenheit und Panoramablick mit zweitem direktem Zugang zum Rasensitzplatz/Liegewiese
- Ein zweiter Balkon auf der Westseite mit Abendstimmung
Ausstattung der heimeligen Ferienwohnung
- Zwei Schlafzimmer mit je 2 separaten Betten und nordischem Bettinhalt plus zwei Zusatzbetten, Kleiderschrank, Schreibtisch, Stühle und Leselampe
- Ein Schlafzimmer mit 2 Betten und nordischem Bettinhalt mit Verbindungstüre, Kleiderschrank, Schreibtisch, Stühle und Leselampe
- Grosse, offene, helle und vollständig eingerichtete Wohnküche mit Eckbank, ausziehbarer Tisch/3 Stühle, Küchenzeile mit 4 elektrischen Herdplatten, Dampfabzug, Geschirrspüler, Kühlschrank/Normgefrierfach, Backofen, Filterkaffeemaschine, Wasserkocher, Fondueset, Staubsauger und weiteren Details. Die zweite Küche im Ostzimmer ist nicht in Betrieb
- Gemütliche Sitzecke mit Polstergruppe und Leselampe
- TV-Flachbildschirme mit Radio- und Free Wi-Fi
- Zweiter TV-Flachbildschirm mit Radio- und Free Wi-Fi im separaten Ostzimmer
- Grosser Eingangsbereich mit Abstellfläche
- Badezimmer mit Badewanne/Dusche, WC, Waschtisch mit Spiegelschrank und Haartrockner
- Zusätzliche separate schmale Nasszelle mit Dusche, WC, Waschtisch und Haartrockner im Ostzimmer
Ausführliche Informationen finden Sie unter FAQ
Oktober 2025
| Mo | Di | Mi | Do | Fr | Sa | So |
|---|---|---|---|---|---|---|
01 |
02 |
03 |
04 |
05 |
||
06 |
07 |
08 |
09 |
10 |
11 |
12 |
13 |
14 |
15 |
16 |
17 |
18 |
19 |
20 |
21 |
22 |
23 |
24 |
25 |
26 |
27 |
28 |
29 |
30 |
31 |
November 2025
| Mo | Di | Mi | Do | Fr | Sa | So |
|---|---|---|---|---|---|---|
01 |
02 |
|||||
03 |
04 |
05 |
06 |
07 |
08 |
09 |
10 |
11 |
12 |
13 |
14 |
15 |
16 |
17 |
18 |
19 |
20 |
21 |
22 |
23 |
24 |
25 |
26 |
27 |
28 |
29 |
30 |
Dezember 2025
| Mo | Di | Mi | Do | Fr | Sa | So |
|---|---|---|---|---|---|---|
01 |
02 |
03 |
04 |
05 |
06 |
07 |
08 |
09 |
10 |
11 |
12 |
13 |
14 |
15 |
16 |
17 |
18 |
19 |
20 |
21 |
22 |
23 |
24 |
25 |
26 |
27 |
28 |
29 |
30 |
31 |

















